Trong chủ trương quốc gia xây dựng nông thôn mới thì xây dựng nhà văn hóa đạt tiêu chuẩn rất được chủ trọng. Khác với kiến trúc nhà ở, khi xây dựng nhà văn hóa hay trung tâm văn hóa thì vẫn phải giữ được nét đặc trưng của vùng miền và tuần phong mỹ tục Việt Nam. Kinh nghiệm thiết kế nhà văn hóa trong bài viết dưới đây được dựa theo quy định “TCVN 9365:2012 về Nhà văn hóa thể thao – Nguyên tắc cơ bản để thiết kế”.
Chức năng của nhà văn hóa đối với địa phương

- Nhà văn hóa xã Sơn Tân
Sau khi xây dựng hoàn thiện thì nhà văn hóa được đưa vào sử dụng theo đúng quy định của nhà nước. Tại Thông tư 06/2011/TT-BVHTTDL của Bộ Văn hóa, Thể thao và Du lịch:
- Tuyên truyền, phổ biến chủ trương, đường lối của Đảng, chính sách, pháp luật của Nhà nước; kiến thức khoa học, kỹ thuật; giáo dục tư tưởng, đạo đức, lối sống, nếp sống văn hóa lành mạnh trên địa bàn.
- Tham gia các hoạt động xây dựng gia đình văn hóa, nếp sống văn hóa, xây dựng nông thôn mới.
- Xây dựng cơ sở vật chất, đầu tư trang thiết bị, quản lý, khai thác và sử dụng hiệu quả công trình.
- Tổ chức các cuộc hội họp của cộng đồng.
- Tổ chức các hoạt động văn hóa, văn nghệ, thể dục, thể thao, vui chơi, giải trí, nâng cao mức hưởng thụ văn hóa của nhân dân, góp phần xây dựng nông thôn mới.
- Ở một số vùng nông thôn, nhà văn hóa còn là nơi tổ chức đám cưới, lễ mừng tân gia, tổ chức các trò chơi truyền thống vào mỗi dịp Tết đến Xuân về.
Kinh nghiệm thiết kế nhà văn hóa theo TCVN 9365:2012
Quy định diện tích đất xây nhà văn hóa
|
Loại nhà văn hóa |
Sức chứa (người) |
Diện tích quy hoạch (ha) |
|
Nhà văn hóa hoạt động thông thường |
400 – 500 người |
0,8 ha – 1 ha |
|
Nhà văn hóa hoạt động thông thường |
200 – 300 người |
0,6 ha – 0,7 ha |
|
Nhà văn hóa hoạt động thông thường |
100 – 200 người |
0,4 ha – 0,5 ha |
|
Nhà văn hóa hoạt động thông thường |
500 người |
0,6 ha – 0,7 ha |
|
Nhà văn hoá có hoạt động đặc trưng vùng miền |
400 người |
0,5 ha |
|
Nhà văn hoá có hoạt động đặc trưng vùng miền |
200 – 300 người |
0,3 ha – 04 ha |
Tiêu chuẩn về cấp thoát nước
Hệ thống cấp, thoát nước của nhà văn hoá cần tuân thủ các quy định trong TCVN 4513 và TCVN 4474. Ngoài ra, nguồn nước cung cấp cho nhà văn hoá phải được lấy từ hệ thống cung cấp nước chung của địa phương.
Trong trường hợp địa phương không có hệ thống cấp nước chung thì có thể lấy nước từ thiên nhiên như sông, suối nhưng cần phải tuân thủ các quy định về kỹ thuật, qua sàng lọc, để đảm bảo nguồn nước sạch, chất lượng cho người dân.
Tiêu chuẩn hệ thống thông gió, điều hoà không khí

- Nhà văn hóa thôn Cửa Khẩu xây dựng theo tiêu chuẩn TCVN 9365 2012
Các phòng đông người như phòng văn nghệ, phòng đa năng, phòng khán giả,… cần lắp đặt hệ thống thông gió và điều hoà không khí.
Lắp đặt hệ thống thông gió tự nhiên, quạt trần cho các phòng tập trung dưới 400 người. Khu vực vệ sinh cần có hệ thống khử mùi.
Tuỳ theo tính chất, chức năng của từng phòng, nhiệt độ duy trì sẽ khác nhau. Cụ thể, theo tiêu chuẩn thiết kế nhà văn hoá, phòng khán giả, phòng triển lãm, phòng đọc sách, phòng khiêu vũ, phòng học, làm việc, giải trí… cần đảm bảo nhiệt độ trong phòng là 20 – 25 độ C; phòng thể thao cần có nhiêt độ từ 18 đến 20 độ C; nhiệt độ trong phòng luyện tập tổng hợp là từ 22 đến 25 độ C.
|
Tên phòng |
Nhiệt độ (Độ C) |
|
Phòng khán giả, phòng triển lãm, phòng đọc sách, phòng làm việc, phòng học tập |
Từ 20 đến 25 |
|
Phòng thể thao |
Từ 18 đến 20 |
|
Phòng luyện tập thổng hợp |
Từ 22 đến 25 |
Quy định về cấp tiếng ồn ở nhà văn hóa
|
Tên phòng |
Cấp độ tiếng ồn cho phép (dB) |
|
Phòng âm nhạc |
30 |
|
Phòng học, phòng đọc sách |
50 |
|
Phòng vui chơi giải trí |
55 |
Yêu cầu về hệ thống chiếu sáng
- Chiếu sáng bên qua cửa sổ của các tường bao che
- Chiếu sáng bên thông qua mái nhà, lỗ lấy sáng ở mái và những lỗ sáng nằm ở vị cao nhất của nhà văn hóa
- Kết hợp giữa chiếu sáng bên và chiếu sáng bên
- Đảm bảo độ đồng đều là nhỏ nhất khi thiết kế chiếu sáng cho các phòng: 0,7 chiếu sáng bên và 21 khi áp dụng cho chiếu sáng hỗn hợp.
- Cần ưu tiên chiếu sáng tự nhiên cho các phòng có vai trò quan trọng trong nhà văn hóa và tỷ lệ giữa diện tích cửa sổ cùng diện tích sàn phải đúng theo quy định sau: Tỷ lệ giữa diện tích cửa sổ và sàn là ⅓ áp dụng cho phòng triển lãm, đọc sách và phòng mỹ thuật; Tỷ lệ ⅕ dành cho phòng vui chơi giải trí, phòng văn nghệ, phòng học và phòng luyện tập tổng hợp.
- Khi ánh sáng từ mặt trời lên đỉnh điểm, cần sử dụng một vài biện pháp hoặc các thiết bị giúp giảm độ chói do ánh sáng trực tiếp hay phản chiếu gây ra.
- Mọi không gian bên trong nhà văn hóa phải được lắp các thiết bị chiếu sáng nhân tạo ,để sử dụng vào buổi tối hoặc những trường hợp không có ánh sáng tự nhiên.
Tham khảo mẫu bản vẽ kỹ thuật nhà văn hóa đẹp

- Bản vẽ mặt bằng móng nhà văn hóa

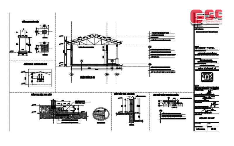
- Bản vẽ kỹ thuật nhà văn hóa theo TCVN 9365 2012

- Bản vẽ cơ bản thiết kế nhà văn hóa thôn, xã

- Bản vẽ chi tiết
GSC Việt Nam đơn vị cung cấp và thi công lắp đặt ghế hội trường trong nhà văn hóa
Hiện nay, nội thất GSC Việt Nam là đơn vị cung cấp và thi công lắp đặt ghế hội trường trong dự án nhà văn hóa ở khắp mọi vùng miền của tổ quốc. Cụ thể, chúng tôi thực hiện hai hạng mục thứ nhất là cung cấp sản phẩm bao gồm ghế hội trường, bàn hội trường. Thứ hai là thi công lắp đặt sản phẩm và trang trí hội trường cho nhà văn hóa.
Điểm danh các dự án hội trường nhà văn hóa tiêu biểu của GSC Việt Nam:

- Dự án tại hội trường nhà văn hóa Huyền Đông Anh

- Trung tâm văn hóa Lạc Thủy, tỉnh Hòa Bình

- Trung tâm văn hóa tỉnh Quảng Bình

- Hội trường nhà văn hóa xã Sơn Tân, tỉnh Hà Tĩnh

- Trung tâm văn hóa tỉnh Bến Tre
Trên đây là những kinh nghiệm thiết kế nhà văn hóa thôn, xã đạt chuẩn theo quy định TCVN 9365:2012. Quý anh chị có dự án hội trường và cần được cung cấp – lắp đặt ghế hội trường, hãy liên hệ trực tiếp với GSC Việt Nam:
- Hotline: 024 62.811.855
- VP Hà Nội: Số 35 Lô D6, KĐT Geleximco, Lê Trọng Tấn, Hà Đông, Hà Nội.
- VP TP. Hồ Chí Minh: Số 179, đường 1B, KCD Vĩnh Lộc, Bình Tân, TP. Hồ chí Minh
- Email: gscvietnam@gmail.com











BÀI VIẾT CÙNG CHUYÊN MỤC: